ATTICO CENTRALISSIMO CON BOX AUTO

In vendita
Montescaglioso - Viale Kennedy
115.000 €
Appartamento
Categoria
140
m2
6
Locali
5
Camere
1
Bagni
1
Box
Descrizione
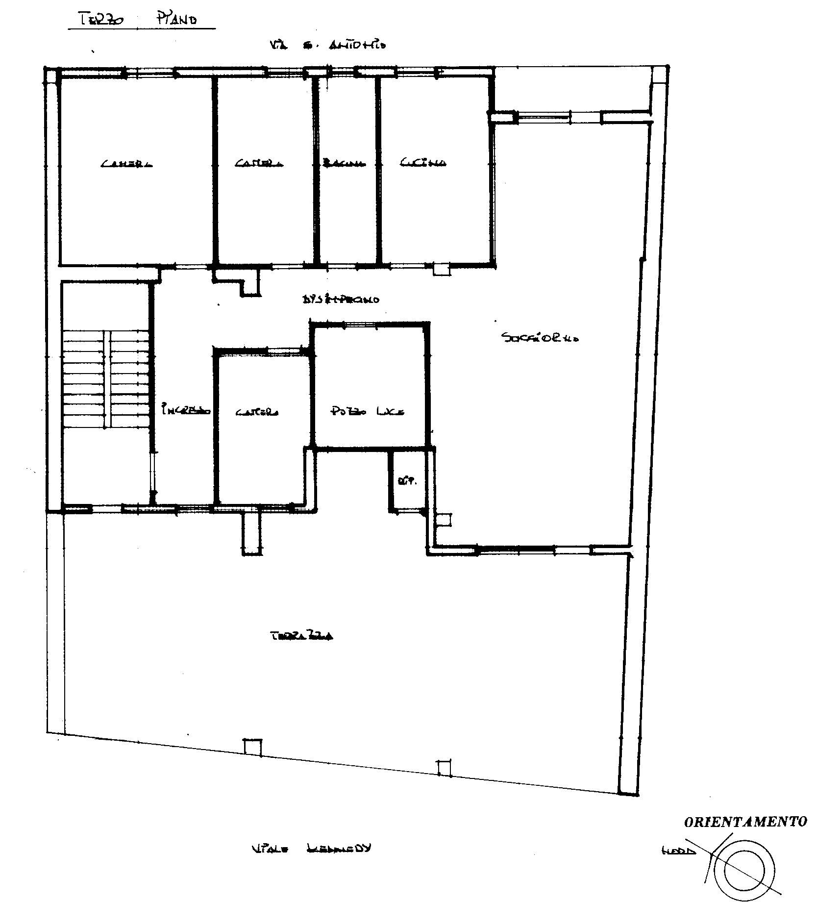
In posizione centrale in un condominio di solo quattro unità abitative, proponiamo in vendita un luminoso e ben distribuito appartamento al piano attico, terzo piano, di circa 140 mq, oltre al terrazzo a livello di 80 mq circa e balcone. L'immobile è composto di 6 vani: disimpegno, tre camere da letto, salone di circa 50 mq, dove sarà possibile realizzare un open space cucina soggiorno con uscita diretta sull'ampio terrazzo, cucina abitabile, un bagno e il vano ripostiglio ubicato nel terrazzo. Completa la vendita il box auto di circa 25 mq. Il prezzo richiesto è di €115.000 trattabili. L'appartamento è dotato di certificato di abitabilità indispensabile per l'ottenimento del mutuo al 100% Under 36 con garanzia dello Stato. Contattaci per maggiori informazioni o per fissare una visita
Caratteristiche principali
Codice:
V000230
Città:
Montescaglioso
Categoria:
Appartamento
Locali:
6
Camere:
5
Bagni:
1
Mq:
140
Box:
1
Mq Box:
25
Balconi:
1
Mq Balcone:
10
Terrazzi:
1
mq Terrazzo:
80
Classe energetica:
G
Stato Immobile:
Buono
Grado:
Medio
Posizione:
Centro
Panorama:
Vista Aperta
Orientamento:
Est Sud Ovest
Lati Liberi:
2
Arredi:
Non Arredato
Tipo Soggiorno:
Salone
Tipo Cucina:
Abitabile
Riscaldamento:
Autonomo
Tipo Riscaldam.:
Caldaia
Tipo Impianto:
Radiatori
Fonte Energetica:
Gasolio
Acqua Calda:
Autonoma
Raffrescamento:
Split
Infissi:
Legno
Serramenti:
Buono
Persiana:
Tapparella PVC
Pavim. Giorno:
Marmo
Pavim. Notte:
Marmo
Pavim. Cucina:
Ceramica
Pavim. Bagno:
Ceramica
Pavimento:
Marmo
Tipo Saracinesca:
Elettrica
Accessori
Aria Condizionata
Ripostiglio
Mappa
Cookie preference